LAKE TAHOE BASIN ARCHITECTURAL draftsman & designer

Who I AM


Becoming an architect has been my dream since I was a child, and that passion has guided every step of my life. Now, as an adult, I'm actively pursuing that dream—working as an architectural draftsman & designer, while preparing to take the ARE exams in California to become a licensed architect. Every project I draft and every hour I study brings me closer to turning my lifelong ambition into a reality.


My end goals are to create beautiful, sustainable designs that enhance the built environment, cultivate long-lasting, trust-based relationships with clients, and deepen my knowledge of construction and engineering so I can deliver resilient, efficient buildings—ultimately improving the quality and longevity of the structures we place on this earth.

PAST Projects

Explore a curated collection of my past work, where imagination met strategy. Each project reflected my drive to deliver thoughtful, effective Architecture & Design.

Client
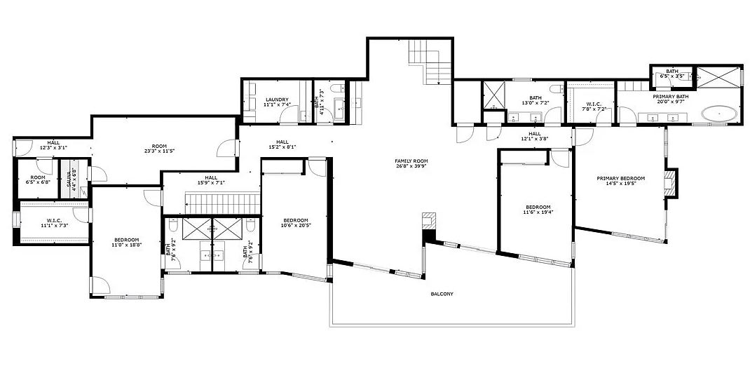
THE SWITCHBACK RESIDENCE

WON THE 2023 TAHOE QUARTERLY AWARD FOR BEST SITE INTEGRATION

Year
COMPLETED 2022

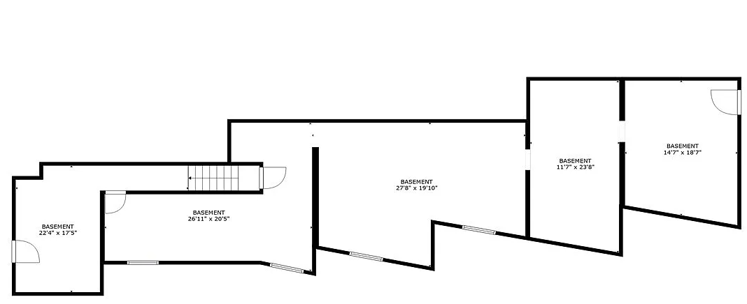
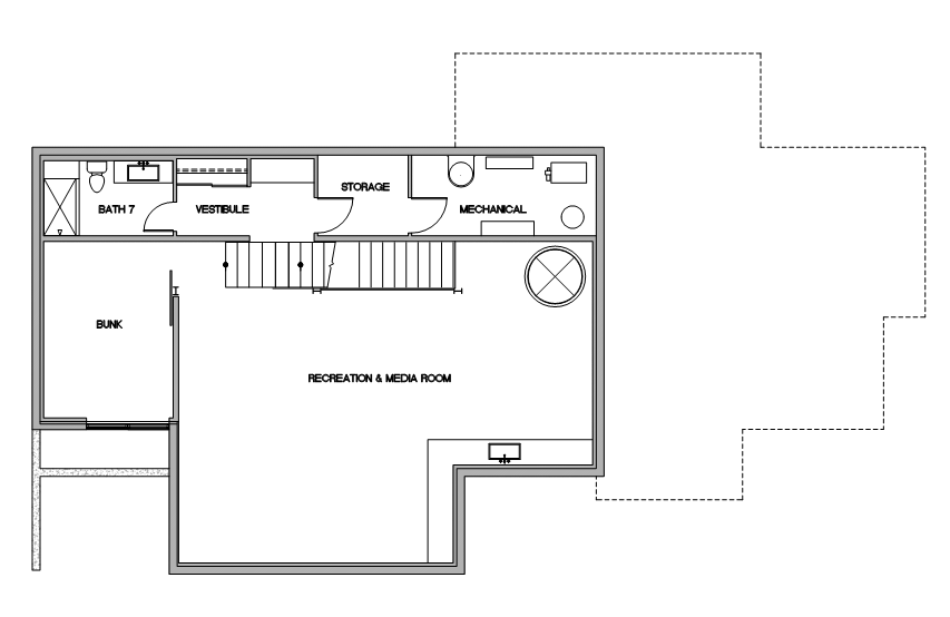
5 BEDROOM 7 BATHROOM 5,536 SF

Year
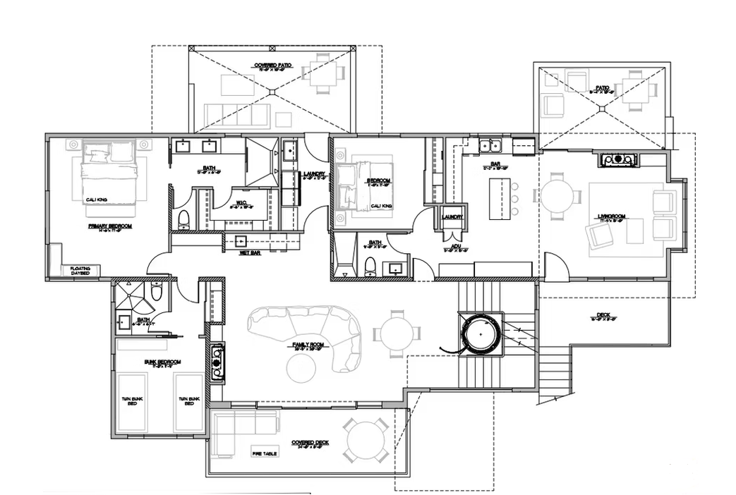
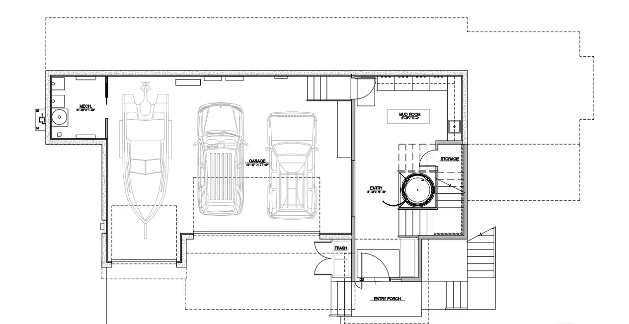
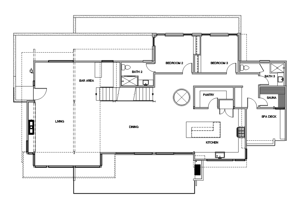
COMPLETED 2024

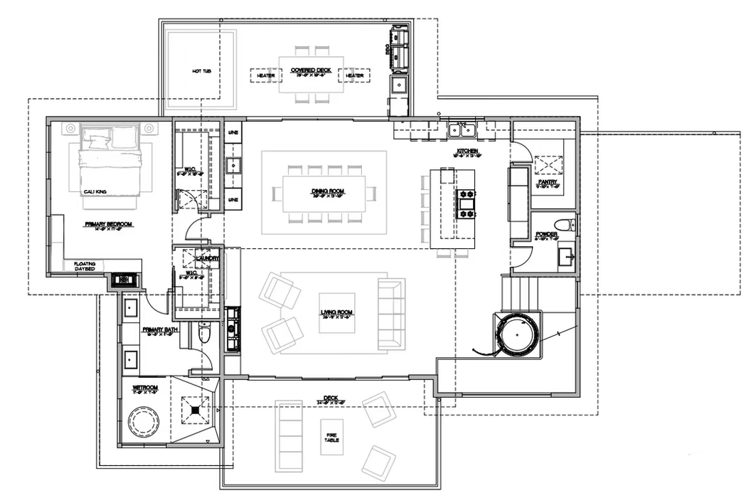
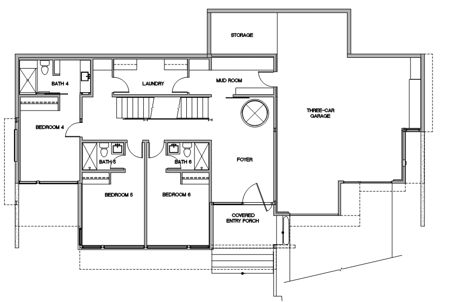
5 BEDROOM 6 BATHROOM 4,071 SF

Client
CEDAR BLUFF MANOR

CURRENT Projects

Explore a curated collection of my current work, where imagination will meet strategy. Each project continues to reflect my drive to deliver thoughtful, effective Architecture & Design.

Client
ALPINE HAVEN

Year
TO BE COMPLETED 2026

5 BEDROOM 5 BATHROOM 4,732 SF

Year
TO BE COMPLETED 2026

7 BEDROOM 7 BATHROOM 6,810 SF

Client
THE VIEW AT CRYSTAL BAY PARK